+49 (0) 871/20667764
info@ludmillawohnbau.de
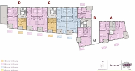
Haus A
Haus B
Haus C
Haus D
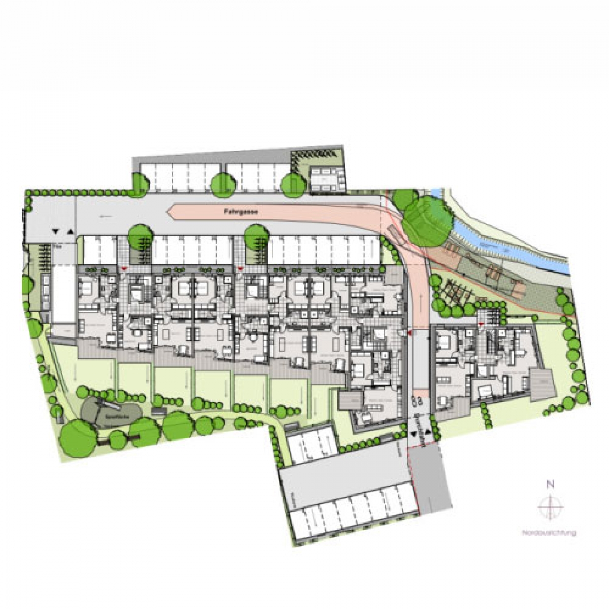
lageplan
Galerie
Eindrücke vom Stadtnest und der Umgebung