2 Zimmer Wohnung mit Loggia
D06
Haus D2
Zimmer76
qm1
Obergeschoss

Haus D2
Zimmer76
qm1
Obergeschoss


verkauft
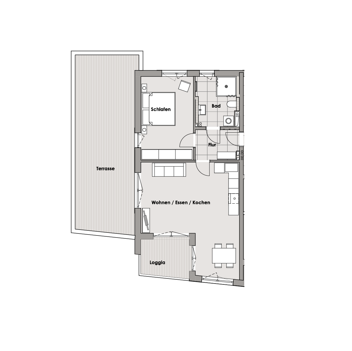
Wohnung D06
2 Zimmer-Wohnung mit Loggia und Dachterrasse
lage: 1. Obergeschoss
Flur:4,64 qm
Wohnen/Essen/Kochen:32,23 qm
Schlafen:15,59 qm
Bad:7,27 qm
Loggia:3,46 qm
Dachterasse:13,02 qm
gesamt:76,21 qm
Eigenschaften
Aufzug
Gegensprechanlage
KFW
Lüftungssystem
Tiefgarage
Ziegelbauweise
Lageplan
Anfahrt und Umgebung
Haus
AHaus
BHaus
CHaus
D
AHaus
BHaus
CHaus
D